ジグ
ジグ


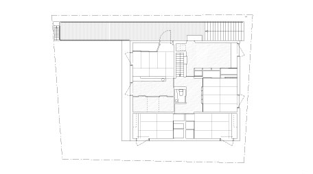
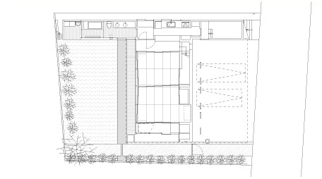
ジグ│JIG

[設計] アトリエ・ワン [architects] Atelier Bow-Wow
[所在地] 千葉県船橋市 [location] Funabashi, Chiba Prefecture
[敷地面積] 295.1sqm [site area] 295.1sqm
[建築面積] 145.7sqm [building area] 145.7sqm
[延床面積] 255sqm [total floor area] 255sqm
[構造] 鉄筋コンクリート造+鉄骨造+木造
[structure] reinforced concrete, steel frame and wood



page 1│2│3

© Atelier Bow-Wow  All Rights Reserved.