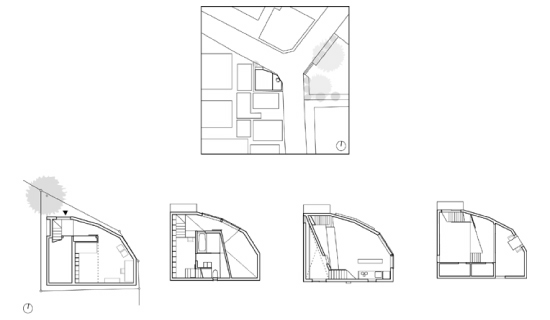
Aco House


アコ・ハウス│Aco House


[設計] アトリエ・ワン     [architects] Atelier Bow-Wow
[所在地] 東京都世田谷区     [location] Setagaya-ku, Tokyo
[敷地面積] 51.26sqm     [site area] 51.26sqm
[建築面積] 35.51sqm     [building area] 35.51sqm
[延床面積] 84.86sqm     [total floor area] 84.86sqm
[構造] 木造     [structure] wood
[写真] アトリエ・ワン     [photo] Atelier Bow-Wow



page 1│2│3456

© Atelier Bow-Wow  All Rights Reserved.